thumbnail image
  • 首页 Home
  • 动态 News
  • 作品 Works
  • 关于 About
  • …  
    • 首页 Home
    • 动态 News
    • 作品 Works
    • 关于 About
  • 首页 Home
  • 动态 News
  • 作品 Works
  • 关于 About
  • …  
    • 首页 Home
    • 动态 News
    • 作品 Works
    • 关于 About
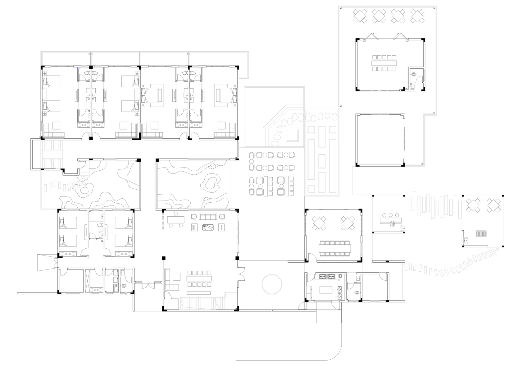
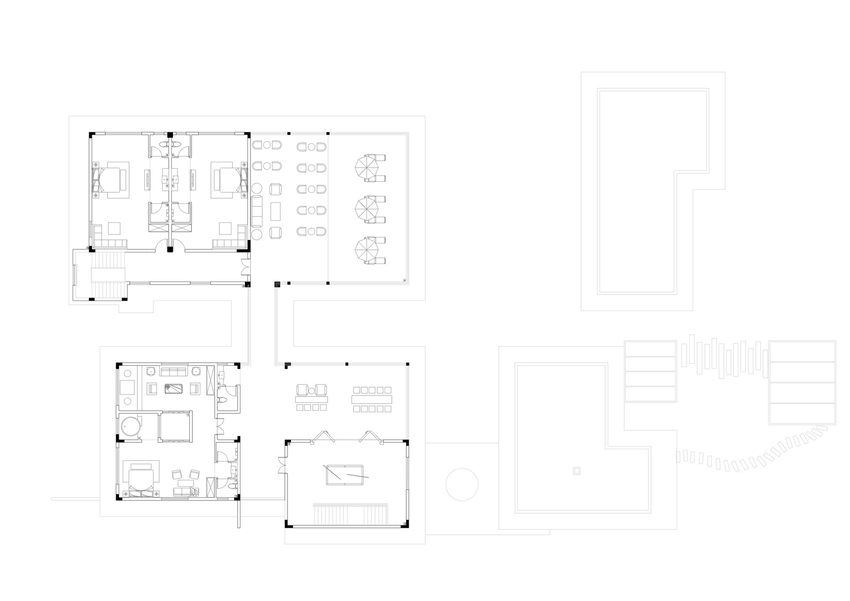
  • 巴南别院·民宿

    Ba’Nan Boutique Inn

    委托方案 Commissioned Project

     

    - 本项目获得由重庆市住房和城乡建设委员会主办的首届“巴山渝水·美丽村居”民宿方案赛道二等奖。

    - 该民宿项目位于重庆市巴南区天星寺,设计面积约1200㎡。共两层,一层为大厅、住宿、娱乐休闲空间,二层为住宿及活动空间,提供完备功能的同时满足现代人“回归山林”的精神需求。

    - 项目方案设计结合了当地的景观资源和巴山渝水的建筑空间精神;引景入园、拓景接天,利用水体景观、植物配置、材质搭配来体现建筑的场所精神;利用现代简洁的建筑体块进行中式建筑的现代表达,利用框景、孤植、小径等景观手法来体现意味幽深的建筑韵味。

    - 项目方案设计采用了现代建筑的设计语言,通过使用现代材料、设计手法、景观设计将“巴山渝水”内核、山城人居的空间感受实体化,力求在表达在地性的同时不落入“仿古”、“崇古”的桎梏中。

     

    - This project won the second prize in the first "Bashan Yushui · Beautiful Rural Homestay" design competition, hosted by the Chongqing Municipal Housing and Urban-Rural Construction Committee.

    - The Ba’Nan Boutique Inn project is located in Tianxing Temple, Banan District, Chongqing, with a design area of approximately 1200 square meters. The building has two floors: the first floor includes a lobby, accommodation, and entertainment and leisure spaces, while the second floor is designated for accommodation and activity spaces. The design aims to meet the complete functional needs of modern life while fulfilling the spiritual desire for a "return to nature."

    - The project design integrates local landscape resources and the architectural spirit of Bashan and Chongqing. It introduces scenery into the garden and extends the view to the sky, using water features, plant configurations, and material combinations to embody the sense of place. The design employs modern, simple architectural forms to express contemporary interpretations of traditional Chinese architecture. Landscape techniques such as framed views, solitary plantings, and winding paths are used to convey the profound charm of the architecture.

    - The project design utilizes the language of modern architecture, employing contemporary materials, design techniques, and landscape design to materialize the core essence of "Bashan and Chongqing" and the spatial experience of mountain city living. The goal is to express local characteristics without falling into the trap of "imitating the ancient" or "revering the old."

  • 返回上一级

© 2025立间建筑 Liqadence Design Atelier

渝公网安备50010302504834号
|
渝ICP备2023009226号-2
    Liqadence 立间建筑
    Website
    https://user-assets.sxlcdn.com/images/860485/Fl0uzNGRKbH0qzkMDYk0LECmeYl_.png?imageMogr2/strip/auto-orient/thumbnail/1200x630>/quality/90!/format/png
    Cookie的使用
    我们使用cookies来确保流畅的浏览体验。若继续,我们认为你接受使用cookies。
    了解更多